■ 物件価格:2,190万円
■ 所在地:東京都 北区 神谷3-18-8 [Google Map→]
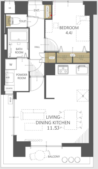
■ 間取り:1LDK
■ 所在階数:2階部分(5階建て)
■ 交通:志茂駅徒歩9分
■ 専有面積:44.28㎡ ■ バルコニー:8.03㎡
■ 築年月:昭和54年4月
【物件番号】 kt-218
資料請求の際はこちらの物件番号をご入力ください。
■ 物件価格:2,190万円
■ 所在地:東京都 北区 神谷3-18-8 [Google Map→]
■ 間取り:1LDK
■ 所在階数:2階部分(5階建て)
■ 交通:志茂駅徒歩9分
■ 専有面積:44.28㎡ ■ バルコニー:8.03㎡
■ 築年月:昭和54年4月
【物件番号】 kt-218
資料請求の際はこちらの物件番号をご入力ください。
物件特徴志茂駅徒歩9分・赤羽駅徒歩17分・1LDK・角部屋・2面採光・風通良好・リノベーション2026年4月完了(水回り交換・床材・クロス・建具等)・システムキッチン・ユニットバス・バイク置き場・駐輪場・駐車場・防犯カメラ・イオン徒歩2分
¥59,990,000
¥46,800,000
¥47,800,000
¥46,800,000
¥36,800,000
¥9,100,000
¥145,000,000
¥17,800,000
¥43,980,000
¥59,800,000
¥32,500,000
¥43,800,000



